有些人因一家网红酒店而来到这座城市。“网红”这个词不断刷新人们的视野,网红酒店、网红树屋酒店、网吧酒吧、网红打卡胜地等,每年吸引着无数人的到此参观。一间网红的酒店不仅要...
桂林树屋酒店位于度假区,“树屋”属于其中的度假屋版块。



将抽象化的居住建筑原型进行堆叠的设计,无论在欧洲还是日本都有先例,但更偏于几何形体操作,空间体验也常局限于室内。基于这个项目的商业性质以及所处的山野环境,我们把设计的重点放在了抽象与形象、室内与室外、几何与自然之间的均衡状态。
因此“对偶与平衡”的手法贯穿于酒店设计的各个方面。仿真的枯树干直接唤起了自然中的巢居意象,但避免枝繁叶茂的过度写实;坡屋顶基本不出檐,保持简洁的几何体特征,但每间都有阳台凸凹,原初的方案立面也呼应周围的林木葱茏;单体房间与自然树木相偎依,而形体的穿插关系又保留了一定的人工化状态。




树屋的体验是从“爬树”开始的,因此我们对室外路径和室外体验格外重视——迴转登高的路径犹如“攀爬”,不同高度的室外露台犹如可以停歇的“树杈”,而居室相当于树上的“果子”。路径有斗折蛇行、忽明忽暗的空间体验,露台是舒适的室外活动空间。虽然每幢树屋都包含好几棵具有结构作用的仿真树,但在概念上它是由“路径-平台-房子”三种元素组成的“一棵大树”。



考虑树屋酒店的受众多为亲子家庭和年轻人群体,六个房间采用了两种造型:带凹阳台的双坡顶和带凸阳台的切角四坡顶,后者强化了一定的童话效果。原方案中还有从平台到地面的滑梯增加童趣。当夜晚的灯光在树梢间亮起,“七个小矮人”的故事似乎即将登场。



▼树屋阳光下



▼树屋夜景

▼树屋网红酒店室内客房

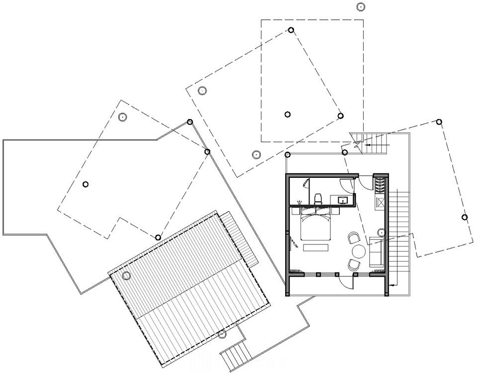
▼树屋网红酒店平面布置图





最终建成的6幢树屋网红度假酒店受到了市场的热烈追捧,成了网红打卡点,树屋甚至被用在王菲拍摄的2021年新版广告的片头。然而对主创人员来说,仍有不少完成度方面的遗憾。施工中对单体立面的过度简化、窗的形态改变、滑梯取消等等,都让它的效果有所折损。
















